RAF Pembrey
RAF Pembrey started as a training station for anti-aircraft gunners in 1936/7 with the 280 Ground Defence Squadron. In 1938 plans were drawn up for an airfield and the station was operational in 1939. The majority of buildings were in wood and the main (important) buildings in PB or TB (Perminent/Temporary Brick) construction.
By the time of the Battle of Britain, Pembrey came under 10 Group (HQ RAF Box). Spitfires were stationed here for defence of the area.
In 1941 it became No.1 Air Gunnery School with Wellingtons, Fairy Battles and Blenheims us for training air gunners and Spitfires for "Fighter Affiliation".
1945 Fighter Command came back here with 233 Operational Conversion Unit
flying Vampire's and Hunters and by 1957, it was closed and the last flight out was Princess Margret in a Valletta.
Army Bofors AA gun.
Vickers Wellington.
de Havilland Vampire.
RAF Pembrey

RAF Pembrey
A very good air photo of RAF Pembrey.
Air Ministry plan 3925/48 of the airfield.
1 - Workshop shed - S frame/A sheeting - 1988/34.
3a-3b-3c&3d - F type sheds - S frame/A sheeting - 2725/36.
16 - Fuel compound - PB - 2597/38.
24 - MT sheds & office - B Type - 1683/38.
25a - Squadron HQ - (ex watch office).
25b - Watch tower -
TB - TD1308.
25c - Watch office - TB - 12098/41
30 - Gas defence centre - PB - 8632/37.
66a-66b&66c - VR1 hangars - S frame/A sheeting - FT 507-527.
82 - Sleeping shelter 23man -
PB - 11049/41
95 - Dome trainer TC - 73/42.
97 - Battle head quarters - B - 11008/41.
163to165 - Dispersal pens (Blenheim type) - 7151/41.
166to187 - Blister hangar -
enlarged over type - 12532/41.
188to189 - Aircraft dispersal hard standings.
TB/C - Temporary Brick/Concrete.
PB/C - Perminent Brick/Concrete.
ST - Steel.
T - Timber hutting.
C - Corrugated Iron hutting.
A. - Asbestos hutting.
N - Nissen hutting.
RAF Pembrey
Spitfires at RAF Pembrey in the summer of 1940 they came here to defend South Wales.
Many air battles were fought over this area and the pilots were being controlled by 10 Group HQ at RAF Box.
WAAF fighter controllers.
No.92 Squadron 18 June 1940
RAF Pembrey
Fly Wales, Pembrey Airport.
A good photo of the old accommodation aria and
the airfield sites. Two large hangars 'F' type sheds still exist. The bases of two 'VR' sheds, dome trainer, fire tender garage, WAAF institute,the gas defence centre (decontamination block), station armoury, bulk petrol installation, fuel compound and a few more buildings.
RAF Pembrey
Crossing the railway line.
RAF Pembrey
Anti tank defences all along the railway track. These defences have no relevant to the airfield defences and were placed here to stop enemy tanks. After landing on the beach from moving in land.
Three different pillbox defences around Pembrey. Anti-invasion.
Part of the of the manufacturing of munitions at Pembrey.
RAF Pembrey
The main entrance into the airfield.
RAF Pembrey
Motor racing track.
PEMBREY CIRCUIT.
PEMBREY CIRCUIT.
Track.

RAF Pembrey
Squash court and tennis courts.
35- Officers Mess - B type hutting - 1620/38.
36
a&b - Officers quarters - B type hutting - 1620/38.
37 -
Officers quarters & Batman - B type hutting - 1620/38.
87 -
WAAF Institute Type 301-350 - TB - 627/42.
195 - Squash court - TB - 16589/40.
197 - Tennis courts (2 No.).
details
Squash court - TB - 16589/40 at RAF Dunkeswell.
Squash court.
RAF Pembrey
A very unknown building.
RAF Pembrey
A very unknown building.
RAF Pembrey
The stream/river that runs through the airfield site.
River.

RAF Pembrey
87 -
WAAF Institute Type 301-350 - TB - 627/42.
This building was for the WAAF to use as a comfortable place to relax, eat, socialise, write letters, etc.

RAF Pembrey
87 -
WAAF Institute Type 301-350 - TB - 627/42.
I think this is the kitchen area,
Plan.
RAF Pembrey
87 -
WAAF Institute Type 301-350 - TB - 627/42.
The connection between the two sides of the building.
Plan.
RAF Pembrey
87 -
WAAF Institute Type 301-350 - TB - 627/42.
Cupboards.

RAF Pembrey
87 -
WAAF Institute Type 301-350 - TB - 627/42.
Water tower
Note the steel ladder cut off now, but would have continued up to the water tank in the top.
There was also a boiler and hot tank at the bottom.
Water tanks.
What a boiler would have looked like.

A hot tank, covered in asbestos would have looked like.

RAF Pembrey
87 -
WAAF Institute Type 301-350 - TB - 627/42.
Electrics on the wall.
Crittall window.

RAF Pembrey
87 -
WAAF Institute Type 301-350 - TB - 627/42.
Main hall.

RAF Pembrey
87 -
WAAF Institute Type 301-350 - TB - 627/42.
Toilet block.
Base for a coke/coal stove.
Coke/coal stove.

RAF Pembrey
87 -
WAAF Institute Type 301-350 - TB - 627/42.
View from a window.
Plan.
RAF Pembrey
Modern buildings unknown.
RAF Pembrey
Modern buildings unknown.

RAF Pembrey
Modern buildings unknown.

RAF Pembrey
Modern buildings.
This cold be an Evans - Bevan Ltd, SkewenCwmdu brickworks, Skewen, Neath, West Glamorgan .

RAF Pembrey
This whole area would have been full of wooden hutting.
Wooden Hutting.
Taken from 'British Military Airfields' by Paul Francis, and excellent book for this subject. He states on page 206 all about Air Ministry hutting.
Type 'A' hutting - Was to have a life span of 10/15 years. Roofs in corrugated asbestos.
Type 'B' hutting - Was to have a life span of 5 years. Roofs in timber and felt covering.
Each section was to be built in panels and bolted together and to threads sticking out of concrete foundations to hold them down.
3d - "F" Type Shed - S. Frame A. Sheet - 2725/36.
4 - Ambulance Garage & Mortuary -
B Type hutting - 5746/37.
5 - Sick Quarters -
B Type hutting - 5746/37.
17 - Instruction Block - A Type hutting - 1625/38.
19 - Main Store -
B Type hutting - 1624/38.
31 - Turret Instructional Bldg. -
B Type hutting - 265/39.
34 - Guard House & Fire Party -
B Type hutting - 5742/37.
35 - Officers Mess - B Type hutting - 1626/38.
40 - Works service building & Boiler house - 1627/38.
44 -
Station Armoury - B Type hutting - 1627/38.
53a -
Link Trainer - A Type hutting - 7100/38.
91 -
Ammunition Storage Shelter - TB.
95 -
Dome Trainer - TC - 73/42.
96a - Ammunition Storage Shelter Type C - 5495/42.
AS - Air Raid shelter.
TC - Temporary Concrete.
Stanton air raid shelter.
Link trainer.
Sick quarters.
RAF Pembrey
95 -
Dome Trainer - TC - 73/42.
Dome trainers were built for Anti-Aircraft Gunnery Training. Built to Air Ministry Drawing Number 73/42.
40mm Bofors gun.

RAF Pembrey
95 - Dome Trainer - TC - 73/42.
Plan.

RAF Pembrey
95 -
Dome Trainer - TC - 73/42.

RAF Pembrey
95 -
Dome Trainer - TC - 73/42.

RAF Pembrey
95 -
Dome Trainer - TC - 73/42.

RAF Pembrey
95 -
Dome Trainer - TC - 73/42.
To find out how these worked, you have to go to Prepare for takeoff!!! Langham Dome.

RAF Pembrey
95 -
Dome Trainer - TC - 73/42.
A member of the Royal Air Force Regiment under instruction in a dome anti-aircraft teacher at RAF Leuchars where a WAAF projects the film of the targets.

RAF Pembrey
95 -
Dome Trainer - TC - 73/42.
RAF Pembrey
All the buildings visited so far.
RAF Pembrey
Gradually moving closer to the hangars.
The two remaining hangars in yellow.
RAF Pembrey
River and 33 - Fire tender garage - TB - 5748/37.
The area from above.
From the plan only one building remains and I cannot read its number so cannot identify it.
32 - Station HQ - B type hutting - 1623/38.
33 - Fire tender garage - TB - 5748/37.
34 - Guard house & fire party.1623/38.

RAF Pembrey
Impressive main entrance & Station HQ Area.
The office.
From the plan only one building remains and I cannot read its number so cannot identify it.
32 - Station HQ - B type hutting - 1623/38.
33 - Fire tender garage - TB - 5748/37.
34 - Guard house & fire party.1623/38.

RAF Pembrey
How the Station HQ may have looked, this hut was at RAF Kemble and probably long gone now.
This is just to give an idea of what the wooden hutting would have looked like and I think its 'A' Type Hutting with a wood and felt covered roof. It should have only lasted five years. So in 2005 it would have been 60years old..
Rear of the RAF Kemble hut.
Plan of the RAF Kemble hut.
Detail of building.
Detail of windows.
RAF Pembrey
33 - Fire tender garage - TB - 5748/37.
Fire tender
Trailer pump.

RAF Pembrey
64 - Barber, shoemaker & tailors shop - TB - PL 4GT.
In the field.
Nissen barbers shop.
P/O Lewis needs a haircut.

RAF Pembrey
64 - Barber, shoemaker & tailors shop - TB - PL 4GT.

RAF Pembrey
9 - Institute - B Type Hutting - 142238.
16 - Fuel compound - PB - 2597/38.
24 -
MT Sheds & Office - B Type Hutting - 1622/38.
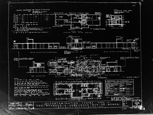
30 - Decontamination Centre - Type H (or M?) - TB - 16711/39.
34 -
Guard House & Fire party - 5748/37.
51 - Office Block - B Type Hutting - 1173/38.
151 - Class room -
B Type Hutting - 14540/39.
30 - Decontamination Centre - Type H (or M?) - TB - 16711/39.
Nurses decontamination

RAF Pembrey
30 - Decontamination Centre - Type H (or M?) - TB - 16711/39.
16698/39 ARG (from Airfield Research Group) is a smaller version than 16711/39.
I would call 16711/39 as a four bay type and 16698/39 as a two bay type. Both will be very alike in principle.
An entrance
for wounded and unwounded, wounded would be undressed and treated. Next coming into an undressing room/reception, then on to the Bleaching room/showers. Bleach was used to wash off Mustard gas paste and as an agent to counter the gas/paste. Wounded treated in the first aid room. After showering/scrubbing down, clean towels and clean cloths would be issued. All used cloths would be placed through flap type windows and dropped into bins out of the side walls .'B' on the plan.
Then on one side a dressing room and exit through an air lock door and the other side a boiler room and air conditioning room.
Yellow - Bins.
Red - windows/shutters,
Dressing & Boiler rooms.
Showers.
Air conditioning system.
Hot water tank.
.

RAF Pembrey
30 - Decontamination Centre - Type H (or M?) - TB - 16711/39.
Four entry air locks. The building is over pressured to stop the ingress of gas.
The railings are to help gassed and wounded to enter.
Entrance area.
Reception area.
Undressing area.

RAF Pembrey
30 - Decontamination Centre - Type H (or M?) - TB - 16711/39.
Unsure if these are windows or not.
Angled frames?

RAF Pembrey
30 - Decontamination Centre - Type H (or M?) - TB - 16711/39.
Reception/undressing area.
Reception/undressing area.

RAF Pembrey
30 - Decontamination Centre - Type H (or M?) - TB - 16711/39.
Note the curtain rail over the entrance to the bleaching room.
Bleaching and shower area.
Electrical box.
Internal lighting.
RAF Pembrey
30 - Decontamination Centre - Type H (or M?) - TB - 16711/39.
These buildings were never used, thank goodness. Some later on in the war were used as a shower block and just storage.
Bleaching and shower area.
Exit door & light at RAF Kemble.
Chimney and air intake RAF Kemble.
RAF Pembrey
30 - Decontamination Centre - Type H (or M?) - TB - 16711/39.
The chimney is to allow fresh clean air (air above a gas cloud) to enter the filtering system to the air conditioning.
The large block at the rear, is for a very large water tank to allow the free flow of water through the shower system.
Water tank at RAF Little Rissington.
Air intake RAF Kemble.
Boiler house entrance and smaller chimney.

RAF Pembrey
16 - Fuel compound - PB - 2597/38.
Good South Wales coal.
Coal wagon.
The type of gates that would have been fitted here.
RAF Pembrey
16 - Fuel compound - PB - 2597/38.
A large fuel compound.
RAF Pembrey
16 - Fuel compound - PB - 2597/38.
Why this part had such a strong roof, I have no idea, It was just to store coal. The pipe fittings were placed there by a farmer as a Cow
byre.

RAF Pembrey
16 - Fuel compound - PB - 2597/38.
Coal was brought here, weighed and recored and placed in piles between the walls, Then an amount was issued out weekly to a hut, depending on how many fires that were in the hut. Also for the main heating plant and all institutes and Messes.
Central heating chamber in B type hutting. Very like the one that was here and heated by coal.
Boiler house.
RAF Pembrey
16 - Fuel compound - PB - 2597/38.
Office in the end, now has added tin on its roof.
RAF Pembrey
16 - Fuel compound - PB - 2597/38.

RAF Pembrey
24 -
MT Sheds & Office - B Type Hutting - 1622/38.
Usually an MT (Motor Transport) garage came in (small) two or three bays. (large) 26 bays of two rows of 13 each. At least one would have a vehicle inspection pit. An office was also provided. Some had doors to close off the garages, but others were open. The floor was beaten earth and concrete lanes for the lorry tyres to drive over.
9026/40 plan
Vehicle service pit,
A wash down/loading/unloading ramp would be provided.

RAF Pembrey
Details14a - Central boiler house - B Type Hutting - 1627/38.
26 - Petrol tanker garage -
B Type Hutting - 1623/38.
27 - Bulk petrol installation - Type A
(60,000gal) - 12219/38.
29 - Gas chamber
- 10ft x 10ft - B Type Hutting - 5746/37.
30 - Gas defence centre -
B Type Hutting - 8632/37.
40 - Works service building & boiler house -
B Type Hutting - 1627/36.
55 - Turret Instructional Building - Type A - B Type Hutting - 14539/39.
Albion fuel bowser.

RAF Pembrey
26 - Petrol tanker garage -
B Type Hutting - 1623/38.
27 - Bulk petrol installation - (Aviation) - Type A
(60,000gal) - 12219/38.
Bulk petrol installation
(aviation) was the fuel for the aircraft, tankers from POL (Petroleum Board) a nationalised petrol distributor. Delivered to the BPI and then RAF bowsers would run the fuel out to aircraft all over the airfield.
A Type hutting with an asbestos roof at RAF Honeybourne 2009. This is how the garage may have looked but with open doors each end.
POL.
POL articulated tankers.
900 gal. Brockhouse Mk2 trailer bowser.

RAF Pembrey
27 - Bulk petrol installation - Type A (60,000gal) - 12219/38.
Three plinths for the pump assemblies.
Pump.
Pump house plan 9846/41.
Gauge.

RAF Pembrey
27 - Bulk petrol installation - Type A
(60,000gal) - 12219/38.
Holes in the wall for pipes to go through.
Semi armoured steel doors were fitted.

RAF Pembrey
27 - Bulk petrol installation - Type A
(60,000gal) - 12219/38.
Pipes coming up from the ground tanks.
Underground fuel tanks.
Heavy pipe work in a pump house.

RAF Pembrey
3a - 'F;' Type - Synthetic Trainers - St frame A sheeting - 2725/36.
St - Steel.
A - Asbestos sheeting.
This
hangar was used as a synthetic trainer, training bomber gunners to fight.
Plan.
Two remaining hangars.
Free gunnery trainer.

RAF Pembrey
3a - 'F;' Type - Synthetic Trainers - St frame A sheeting - 2725/36.
Two pictures of the roof structure, we could not enter the second hangar unfortunately.
RAF Pembrey
'F;' Type - Synthetic Trainers - St frame A sheeting - 2725/36 one of the 'F' types was used a the MT garage post war..
AEC Matador crane.
K48001 Austin ambulance.
Land Rover

RAF Pembrey
A row of Vampires lined up on the ASP (Aircraft Servicing Platform).
Probably a little later in the 1650's a row of Hunters on the ASP showing nearly all of the 'F' type hangars in the background.
de Havilland Vampire.
Hawker Hunter.

RAF Pembrey
3a - 'F;' Type - Synthetic Trainers - St frame A sheeting - 2725/36.
3b - 'F;' Type - Synthetic Trainers - St frame A sheeting - 2725/36.
RAF Pembrey