RFC/RAF Weston-on-the-Green

image

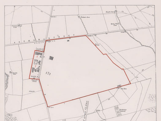
Details

What can be found :
The whole airfield is intact and can be viewed safely without needing to enter the site. Three good places are the south and north side and also a lay-by on the B430. There are many WW2 buildings extant, a nice T2 hangar several Temporary (TB) Brick huts, a perimeter track, the sites north side and south side where at least one Blister hangar was placed and flight offices. WW1 there is what I feel is a Sergeants Mess and an Officers Mess building. There maybe more to find.

What was there :
WW1-
Opened
around 1915/16 - but building started by German prisoners of war and Canadian military personnel in 1917 becoming No.28 TDS,, It was closed in 1921 and redeveloped when a number of the original buildings were demolished.
Originally No's 50 & 64 Training Sqn 1917/18.
No.28 Training Depot Station, formed 15 August 1918, disbanded 31 March 1919.
Aircraft - Salamander, Avro 504K and Camel.
6 x GS sheds (General Service).
1 x ARS (Aircraft Repair Shed).
2 x Aeroplane stores
.
1 x Power house. Etc.



WW2 -

2 x 12bay Bessonneau hangars.
1 x T2 hangar.
4 x Double 69´ Blister hangars.
6 x Single 69´ Blister hangars.
697 x Officers, SNCO´s & O.R., SNCO´s & O.R´s.
134 x WAAF´s.

By 1921 the camp went very quite and became a satellite to RAF Brize Norton and by WW2 it became training station for new pilots. Later it was found that pilots could be trained in the US, Canada, Southern Africa and it then went over to glider and parachute training. It is still in RAF service today and used as a DZ for Joint Services Parachute Centre.


image

GS shed.

image

Double GS shed RAF Old Sarum.

image

The layout of a standard RFC/RAF air station would look with six GS sheds and 1 ARS shed and a mix of offices, class room’s, etc.

image

T2 hangar.

image

Over Blister hangar.

image

Sergeants Mess.

RFC/RAF Weston-on-the-Green

Google

Details

 

RFC/RAF Weston-on-the-Green

image
20 March 1951

Details

A 1951 air photo of the complete airfield.

image

Tiger Moth and trainee pilot.

image

Tiger Moth.

image

Trainees and instructor.

RFC/RAF Weston-on-the-Green

image
20 March 1951

Details

Inside is the airfield site where all the work was carried out. Outside the accommodation site.
The two round shapes on the south side are hard stands for barrage balloons used for parachuting. Balloons were used as a way of getting a parachutist through his/her course quite quickly and cheaply. You only need to fill with a stick of parachutists, raise, drop them, lower and start all over again
.

image

Parachuting from a balloon.

image

Barrage Balloon and its winch lorry.

image

Lowering and raising balloons.

RFC/RAF Weston-on-the-Green

image
25 April 2010

Details

South side a crash gate on to the airfield where a large concrete hard stand for a Blister hangar and a flight hut for training aircraft to work from.

image

Plan.

image

Blister hangar with a Spitfire outside.

image

Blister hangar with curtains. Heavy canvas curtains shut off the front and rear of the hangar.

RFC/RAF Weston-on-the-Green

image
25 April 2010

Details

Site of the Blister hangar.

image

Blister hangar and flight hut.

RFC/RAF Weston-on-the-Green

image
25 April 2010

Details

Hold fast and pins to hold the door curtains down for the hangar.

image

Curtain used as a door.

image

Construction of a Blister hangar.

image

Frame work of a Blister hangar.

RFC/RAF Weston-on-the-Green

image
25 April 2010

Details

Left side is an Anson then several Hawker Hart/Hind type glider tugs.
On the right about eleven Hotspur training gliders.
In the far distance you can just see another Blister hangar
.

At the outbreak of war in 1939, flying came back to the airfield as a Relief Landing Ground (RLG) for Operational Training Units (OTU). There was no real infrastructure, airmen were being billeted out on villagers. The airfield needed upgrading. Its next task was as a Glider Training School (GTS) with Hotspur training gliders. This was an ideal site as the area was relatively flat, so gliders could if necessary, land anywhere in the surrounding countryside. A few Bessonneau, temporary hangars were erected as hangarage. By 1943 there were four Bessonneau and eight Blister hangars, by the end of the war, a T2 hangar, plus five extra over double Blister hangars. With war ending, No.3 Maintenance Unit (MU) turn up and use the airfield for storage.
1945 and RAF Upper Heyford became No1 Parachute Training School (PTS) and the airfield became a landing ground for parachuting. Another addition was adding a Kite balloon to allow pupil parachutists to be raised to about 400ft and then jump out of the basket.

image

Bessonneau Hangar.

image

 

image

 

image

Over Blister Hangar.

image

Double Blister Hangar.

image

T2 hangar inside.

RFC/RAF Weston-on-the-Green

image
25 April 2010

Details

Hotspur training glider landing.

image

Hawker Audax glider tug landing.

image

Hotspur´s.

image

Hotspur.

RFC/RAF Weston-on-the-Green

image
25 April 2010

Details

Flight office base.

image

Plan

image

Flight hut at RAF Biggin Hill.

image

Flight office inside.

RFC/RAF Weston-on-the-Green

image
25 April 2010

Details

Perimeter track looking west.

image

Plan.

image

 

RFC/RAF Weston-on-the-Green

image
25 April 2010

Details

Perimeter looking east. This is a standard perimeter track for fighter and training stations and not used for moving aircraft around unlike the 50ft perimeter tracks on bomber and bomber training stations.

image

Plan.

image

 

image

 

RFC/RAF Weston-on-the-Green

image
25 April 2010

Details

Airfield site.

image

Plan.

RFC/RAF Weston-on-the-Green

image
25 April 2010

Details

T2 hangar. As WW2 started hangars were called the old name of Sheds. With an American influence and a modernising of names the word hangar (French) became used.

image

T2.

image

T2 under construction.

RFC/RAF Weston-on-the-Green

image
25 April 2010

Details

This T2 hangar has been split between an aircraft hangar for their parachute plane and the other end a parachute training area where the teaching of packing and using parachutes.

image

Plan of this T2 hangar.

image

Parachute packing.

image

WW2 training of the use of parachuting.

RFC/RAF Weston-on-the-Green

image
25 April 2010

Details

This very odd designed domed building is it the new control tower for the airfield. I am presuming the dome is so there is a 360° horizontal view and a full view of the skies above to watch for parachutes?

image

RAF Weston-on-the-Green watch office.

image

Watch office.

image

 

RFC/RAF Weston-on-the-Green

image
25 April 2010

Details

Another view of the control tower?? and the NFE (Night Flying Equipment) store. This store would be full of night time landing aids, as there was usually no electricity on the flying area, lights were needed to show the wind direction when landing at night and also a line of Goose necked flares to make up runway lights.

image

Details2

image

Goose necked flair.

image

Floodlight and trailer.

RFC/RAF Weston-on-the-Green

image
25 April 2010

Details

A standard TB hut could have originally been a class room for pilot training.

image

TB design.

image

TB design with brick piers. .

RFC/RAF Weston-on-the-Green

image
25 April 2010

Details

Airfield site from the lay-by.

image

Plan.

image

 

RFC/RAF Weston-on-the-Green

image
25 April 2010

Details

Another double aspect TB hut, this may have been the operations hut where operations would be planned and pilots and crews briefed.

image

Operations in a hut.

RFC/RAF Weston-on-the-Green

image
25 April 2010

Details

Double aspect TB hut.

image

How the hut would have looked inside with steel joists used in the roof.

RFC/RAF Weston-on-the-Green

image
03 March 2013

 

Details

Double aspect TB hut.

image

Plan.

RFC/RAF Weston-on-the-Green

image
25 April 2010

Details

Main entrance today.

image

RFC/RAF Weston-on-the-Green.

image

No1 Parachute Training School.

image

Prohibitions.

image

Skydive Weston.

image

Plan.

RFC/RAF Weston-on-the-Green

image
25 April 2010

Details

The old road barrier.

image

Road barrier.

RFC/RAF Weston-on-the-Green

image
25 April 2010

Details

A Hall hut.

RFC/RAF Weston-on-the-Green

image
25 April 2010

Details

Hall hut.

RFC/RAF Weston-on-the-Green

image
AIR doc

Details

This picture was taken inside a Hall hut at RAF Weston-on-the-Green and has the same dimensions and roof joists that the earlier hut has so maybe the same hut?

image

Hall Hut as a crew room..

RFC/RAF Weston-on-the-Green

image
25 April 2010

Details

The large TB hut.

RFC/RAF Weston-on-the-Green

image
25 April 2010

Details

Emergency Water Supply (EWS) in case of fire.
Static Water Tank about 60,000gal 511/41
.

image

Plan.

image

RAF Fire tender.

image

Small RAF Fire tender.

RFC/RAF Weston-on-the-Green

image
25 April 2010

Details

Ready Use Pyrotechnic Store 2647/37.
To store any flairs etc. that have to be removed from planes being repaired in the hangar
.

image

Flairs.

image

1941 British No3 mk1 Very light.

image

Ready Use Pyrotechnic Store 2847/37.

RFC/RAF Weston-on-the-Green

image
25 April 2010

Details

T2 hangar.

image

Plan of this hangar.

image

T2 structure.

image

The way to recognise a T2 hangar is the tell tail upper door runners.

RFC/RAF Weston-on-the-Green

image
25 April 2010

Details

T2 hangar. The rear side has been sealed up and used to train parachutists.

RFC/RAF Weston-on-the-Green

image
25 April 2010

Details

The second entrance. Most military establishments had two entrances, this was the original Main Gate and in WW1 the Guard house would have sat on one side.

image

Plan.

image

Guard room at Old Sarum 1918.

RFC/RAF Weston-on-the-Green

image
25 April 2010

Details

The view from the north.

image

Plan.

RFC/RAF Weston-on-the-Green

image
25 April 2010

Details

Oxford Gliding Club´s new hangar.

image

Plan.

image

Air-Britain collection.

image

Oxford Gliding Club.

RFC/RAF Weston-on-the-Green

imageimage
25 April 2010

Details

WW2 parachute training over the camp, the Officers mess and the T2 hangar show up very well. Several Romney/Nissen huts.

 

 

 

 

 

 

 

 

 

 

 

 

 

 

 

 

 

 

 

Captive barrage balloon used here to train parachutists. 1946-1950 and beyond.

image

Control tower/watch office in front of the hangar.

image

A landing paratrooper.

image

Romney Hut.

RFC/RAF Weston-on-the-Green

imageimage
Lfl. Kdo, 2 Februar 1941 Luftwaffe plan of RAF Weston on the Green

Details

õltere Anlage ansch. als Unterkunft benutzt : -
Older facility subsequently used as accommodation
.
This is a Luftwaffe plan of dated 1941, they had photographed nearly every RAF airfield they could by the start of the war.

 

 

 

 

 

 

 

 

 

 

 

 

 

 

 

 

 

 

 

This is a plan of the WW1 aerodrome with all the men and women’s accommodation. There could be as many as 200 women working on WW1 aerodromes.

image

.

image

NCO pilot.

image

 

RFC/RAF Weston-on-the-Green

imageimage
From Airfield Focus N°73 --------------------------------------------------- RAF Tallaght

Details

Now we head back to World War One and the original Royal Flying Corps/Royal Air Force station of 1917 to 1919.
No.28 Training Depot Station.
Aircraft at one time were:
36 x Salamanders.
36 x Avro 504's.
Possibly constructed by Canadians and German POW's, which was normal practice, the POW's built a lot of RFC's TDS's.
A railway was laid from RFC Bicester to aid in bringing in materials for its construction.

The bottom of the picture is the technical site with (the photos was taken in the 1920's and a lot is missing) with the:
1 - 3 x Twin Belfast Truss hangars.
2 - ARS shed, Aircraft Repair Shed. With tow attached aircraft stores for wings, body’s, etc.
5 - Technical Store.
7&8 - Workshops woodwork & metal.
9 - Motor transport, two rows of open sheds 13 bays per shed and an MT office.
18 - Guard house.
The top of the picture is the communal site.
24 - Officers Mess and probably huts behind for Officers quarters (pupils).
29 - Sergeants Mess.
39 - Hostel (Women), there could be on some stations up-to 200 women. Women's Auxiliary Army Corps.

Hangars are often known as Sheds (hangar in French is shed) either is acceptable.
Belfast Truss hangars - General Service Flight Sheds
..

image

1918 RAF Old Sarum exactly as Weston-on-the-Green would have looked.

image

Belfast Truss hangars inside. (Old Sarum).

image

A.R.S. shed 2 on the plan..

image

 

image

.

image

 

RFC/RAF Weston-on-the-Green

imageimage
20 ‎September ‎2025

Details

Things to Come by Alexander Korda 1936. You can watch it here, they used the old hangars as a backdrop in the film.

image

.Poster.

image

HG Wells.

image

Alexander Korda 1936.

RFC/RAF Weston-on-the-Green

imageimage
1920

Details

I have used RFC/RAF Old Sarum here with several photos showing what Weston-on-the-Green would have looked like.
Here is another 1920 Old Sarum with the same hangar layout and even the Motor Transport is in the same place
.

 

 

 

 

 

 

 

 

 

 

 

 

 

 

 

 

 

 

 

This is an Avro 504 trainer, the backbone of the RFC/RAF from 1914 to WW2. This picture is 1918 Stonehenge.
This is exactly what the aerodrome would have looked like, Avro's buzzing all over the place
.

image

 

image

 

Sergeant pilot1917.

Radio room.

W.A.A.C..

 

RFC/RAF Weston-on-the-Green

image
20 ‎September ‎2025

Details

29 on plan.
This is the WW1 Sergeants Mess, also like the Officers Mess, re used for WW2
.

image

.Plan.

image

 

Sergeant 1917.

RFC/RAF Weston-on-the-Green

image
25 April 2010

Details

29 on plan.
WW1 Sergeants Mess front view
.

image

Plan.

RFC/RAF Weston-on-the-Green

image
25 April 2010

Details

29 on plan.
WW1 Sergeants Mess
.

RFC/RAF Weston-on-the-Green

image
20 ‎September ‎2025

Details

29 on plan.
WW1 Sergeants Mess
.

image

Plan.

Sergeants 1917.

RFC/RAF Weston-on-the-Green

image
20 ‎September ‎2025

Details

29 on plan.
WW1 Sergeants Mess
.

image

Plan.

RFC/RAF Weston-on-the-Green

image
20 ‎September ‎2025

Details

29 on plan.
WW1 Sergeants Mess one of the anti-rooms with a fireplace
.

image

Plan.

image

 

image

Plan.

RFC/RAF Weston-on-the-Green

imageimage
25 April 2010 -------------------------------------------------------- 19 September 2025

Details

29 on plan.
WW1 Sergeants Mess the side
.

image

Plan of the Sergeants Mess.

RFC/RAF Weston-on-the-Green

image
20 ‎September ‎2025

Details

29 on plan.
WW1 Sergeants Mess the rear
.

RFC/RAF Weston-on-the-Green

imageimage
DFW 518/17 National Archives in Dublin -------------------------------------------- Old Sarum 1918

Details

Pupil Officers Dormitories.

 

 

 

 

 

 

 

 

 

 

 

 

 

 

 

 

 

 

 

A picture of RFC Old Sarum 1918, showing the Pupil Officers Dormitories and bell tents for extra Mens barracks.

image

Plan.

image

Pupil Officers Dormitories.

image

Woodwork shop..

RFC/RAF Weston-on-the-Green

imageimage
eBay

Details

Pupil Officers Dormitories.

 

 

 

 

 

 

 

 

 

 

 

 

 

 

 

 

 

Men's accommodation.

image

Plan.

image

Pupil Officer.

image

Pupil Officers.

RFC/RAF Weston-on-the-Green

imageimage
RAF Old Sarum 1918 -----------------------------AM W&B 234/18 National Archives in Dublin

Details

39 on plan.
Hostel For W.A.A.C
.
Women’s Auxiliary Army Corps.

 

 

 

 

 

 

 

 

 

 

 

 

 

 

 

 

 

 

 

Hostel For W.A.A.C.1917 plan.

image

Plan.

image

outside their dormitory.

image

W.A.A.C. fitter..

image

W.A.A.C. poster.

image

W.A.A.C. badge..

image

W.A.A.C. signing up..

RFC/RAF Weston-on-the-Green

imageimage
25 April 2010 ----------------------------------------------------------------------- 20 ‎September ‎2025

Details

24 on plan.
The Officers Mess would be accommodation, rest room and Mess. Each Officer would have either a room to himself or share with one other. They would have a servant to polish their boots, clean his brass and wake him in the morning with a cup of tea. A different world
.

image

Plan.

image

Plan of the Officers Mess.

image

RFC Officer.

RFC/RAF Weston-on-the-Green

image
20 ‎September ‎2025

Details

24 on plan.
Officers Mess
.

image

Plan of the Officers Mess.

RFC/RAF Weston-on-the-Green

image
20 ‎September ‎2025

Details

24 on plan.
Officers Mess
.


image

Plan of the Officers Mess.

image
image

Plan of the Officers Mess.

RFC/RAF Weston-on-the-Green

image
DFW 693/17 National Archives in Dublin

Details

Officers Mess elevation.


image

Plan of the Officers Mess.

RFC/RAF Weston-on-the-Green

image
20 ‎September ‎2025

Details

24 on plan.
Officers Mess
inside.


image

Plan of the Officers Mess.

RFC/RAF Weston-on-the-Green

image
20 ‎September ‎2025

Details

24 on plan.
Officers Mess
.
This is the main room, there would have been large windows all down the left side and the wall to the side and covers about 3/4 of the width.



image

Plan of the Officers Mess.

RFC/RAF Weston-on-the-Green

image
20 ‎September ‎2025

Details

24 on plan.
This is the otherside of the last picture and is about 1/3 of the width and runs right down the length as well.
How this all worked out, I have no idea. I have never seen internal photos of the Offices Mess's
.



image

Plan of the Officers Mess.

RFC/RAF Weston-on-the-Green

image
20 ‎September ‎2025

Details

24 on plan.
Officers Mess
.
Now out of the back possibly food preparation/kitchen area.


image

Plan of the Officers Mess.

RFC/RAF Weston-on-the-Green

imageimage
20 ‎September ‎2025

Details

24 on plan.
Officers Mess
.
Further out and consensus of myself and the very kind gentleman from the company. That this was possibly meat preparation area. A high walled room, with what we thought was the site of an over head water tank. The internal wall and door are more modern.


image

Plan of the Officers Mess.

image

 

RFC/RAF Weston-on-the-Green

image
20 ‎September ‎2025

Details

24 on plan.
Officers Mess
.
The high square room is the one we were last in and further on could be the main cooking area, thus the chimney?.

image

Plan of the Officers Mess.

RFC/RAF Weston-on-the-Green

imageimage
20 ‎September ‎2025

Details

24 on plan.
Officers Mess
.
Wall brackets run all along the inside and the prep area.

 

 

 

 

 

 

 

 

 

 

 

 

 

 

 

 

 

 

 

A now internal window and its a Crittall type.


image

Plan of the Officers Mess.

image

 

image

 

RFC/RAF Weston-on-the-Green

image
20 ‎September ‎2025

Details

24 on plan.
Officers Mess
.
This is the rear area and this may be an extension?? it look it
.


image

Plan of the Officers Mess.

RFC/RAF Weston-on-the-Green

image
25 April 2010

Details

24 on plan.
The Officers Mess.
Back to the front and you see all the front windows bricked up.
There are plans to pull it down and replace it with a purpose built shop and workshops. Difficult to agree with them, but what else can they do. The building is old, its not fit for their purposes and if they were made to leave it. What would it be used for?
?

RFC/RAF Weston-on-the-Green

image
25 April 2010

Details

Back to the B430 looking due south and on the right is what I feel is the WW1 RFC/RAF Officers Mess.

image

Royal Flying Corps.

image

RAF Flag.

image

Plan.

RFC/RAF Weston-on-the-Green

image
25 April 2010

Details

 

image

Force Development Training Centre.

RFC/RAF Weston-on-the-Green

image
25 April 2010

Details